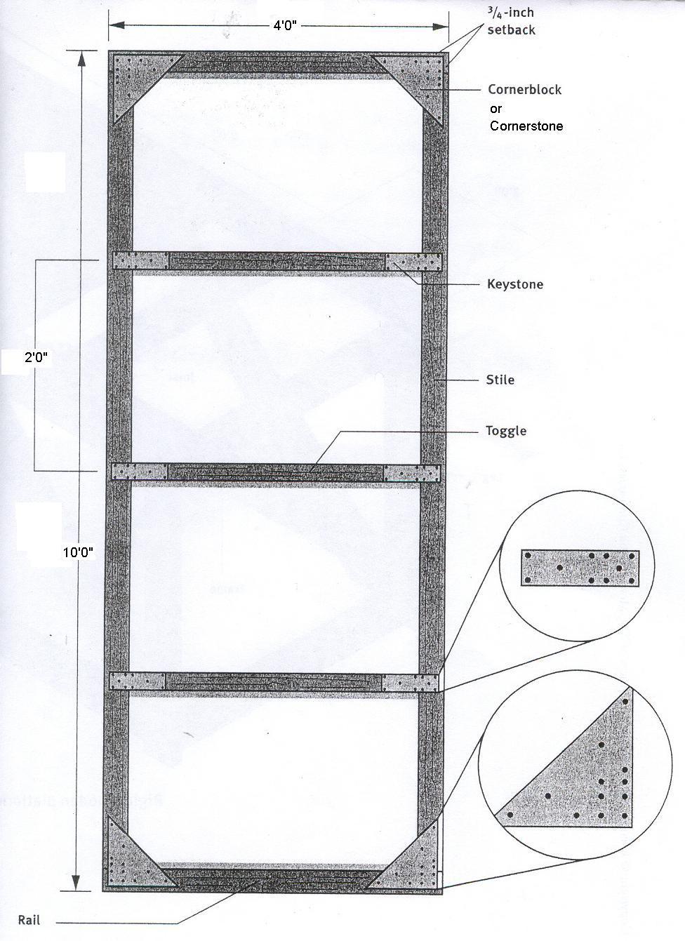
Parts of a Flat

About quiz | Top scores | Edit quiz | Delete Quiz
Click on:  
Score: -/-   Remaining questions: -   Time taken: 0

Your browser dosen't support the HTML5 canvas. Please upgrade your browser. Check here for a comparison of browsers. Firefox, Chrome and Opera are recommended.